gekurvte und runde 2D- und 3D-Geometrien einfach erzeugen und modifizieren
Mit dem ALLPLAN Add-On PatchWork erstellen Sie gekurvte und runde 2D- und 3D-Geometrien – intuitiv, flexibel und effizient. Egal, ob Sie 2D-Grundrisse entwerfen, komplexe 3D-Freiformbauteile wie Tragwerksstürze und Dächer modellieren oder Umgebungs- und Freiraumplanungen um Ihr Bauvorhaben umsetzen: PatchWork integriert sich nahtlos in Ihren Workflow.

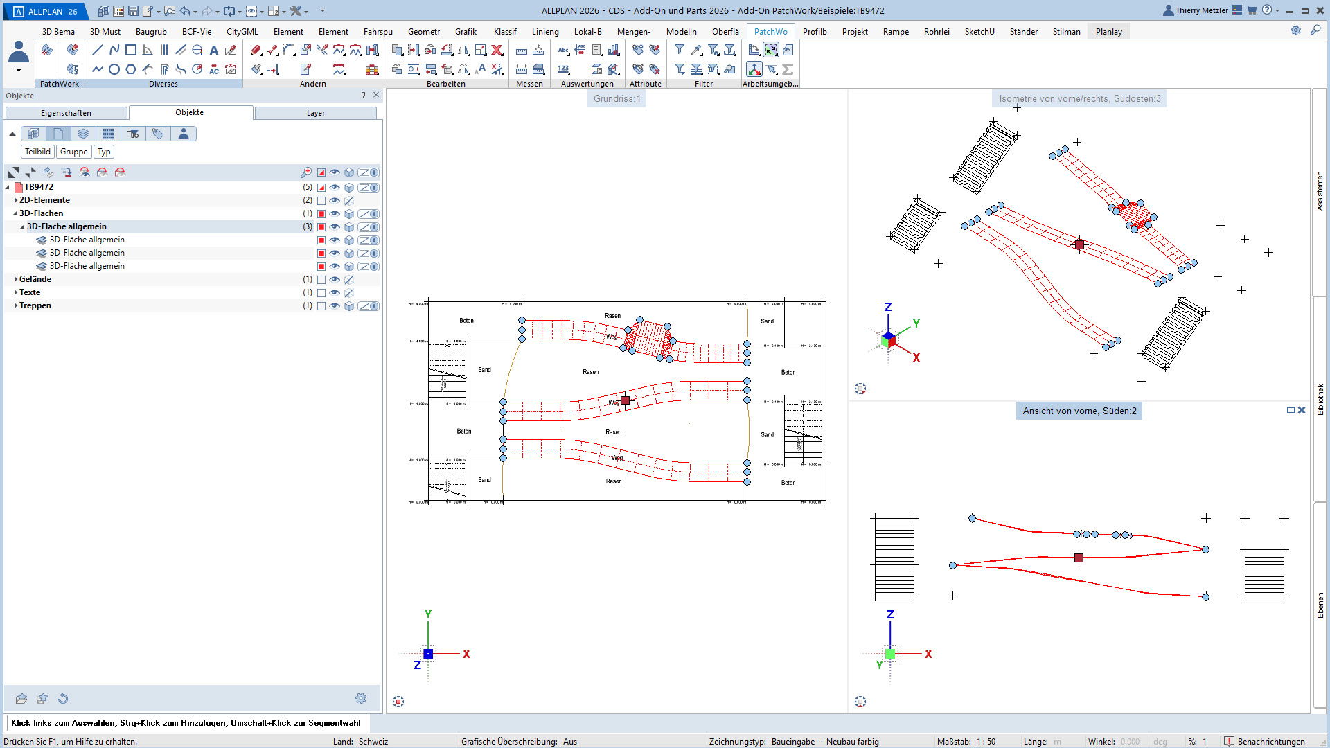
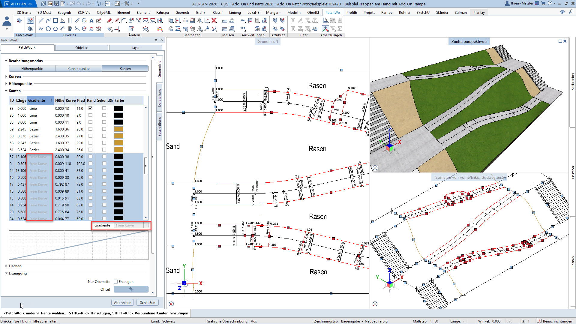
Der innovative Workflow ermöglicht die Geometrieerzeugung durch Punkte, Linien, Kreise, Splines und Kurven. In einem zweiten Schritt platzieren Sie Höhenpunkte an Eck- und Schnittpunkten, definieren Bereiche und weisen diesen verschiedene Materialstile zu – zum Beispiel Asphalt, Beton, Platten, Sand oder Rasen. PatchWork generiert daraus perfekte 2D-Darstellungen und 3D-Volumen, die aus mehreren Materialschichten bestehen können.
Alle Punkte, Linien und Kurven sind jederzeit anpassbar – Längenprofile, Flächen und Volumina lassen sich in jeder Planungsphase flexibel verändern. Und das alles über eine übersichtliche Palette, ohne Spezialwissen oder Programmierkenntnisse.
Mit PatchWork sparen Sie Zeit, erhöhen die Planungssicherheit und haben die volle Kontrolle über jede Geometrie – von der ersten Skizze bis zum fertigen Modell.
![]() | ![]() | ![]() |
Gartengestaltung
spezielle Geometrien
Einfache Gefälleplanung
Anpassungsflächen
Dachformen und Runde Geometrien
Konzeption von Spezialgeometrie
Wir wünschen Ihnen viel Erfolg mit dem Add-On PatchWork von CDS Bausoftware AG.
Gestalten Sie Patchworks mit Schraffuren, Mustern, Farben, erweiterten RGB-Farben, Pixelflächen und Stilflächen – ganz ohne Einschränkungen.
Effiziente Kurven-, Punkt- und Stilbearbeitung inklusive Mehrfachbearbeitung, Segmentlöschung und Formatübernahme.
Erweiterte Höhenpunktsteuerung mit Fixpunkten, abhängigen Punkten und automatischem Höhenrouting für präzise und konsistente Ergebnisse.
Direkte Übernahme von 2D- und 3D-Kurven, Splines, Flächen, BReps und Makros – auch in gemischten Konfigurationen.
Die Flächengeometrie vom Add-On Rampe kann direkt übernommen werden.
Spürbare Geschwindigkeitsgewinne durch Caching, Multithreading, parallele Extrusion und optimierte Vorschauen – auch bei komplexen Patchworks.
Kreisbögen und Viertelellipsen stufenlos von konkav bis konvex einstellbar, mit variabler Bogenhöhe und erweiterten Flächenmodifikatoren.
Z-Offset, Unterseiten-Offset und optionale Erzeugung nur der Oberflächen sorgen für maximale Kontrolle über Geometrie und Darstellung.
Unveränderliche Punkte und Kurven werden eindeutig gekennzeichnet und zuverlässig vor unbeabsichtigten Änderungen geschützt.
Höhenpunkte, Flächen, Stile und Höhenlinien flexibel beschriften – inklusive Symbolen, Systemwinkel-Unterstützung und globaler Steuerung.
Höhenangaben und Texte passen sich automatisch an Verschiebungen und Drehungen des Patchwork-Makros an.
Jede Schicht wird als strukturiertes Makro mit persistenten Attributen erzeugt – ideal für Reports, Mengen und Auswertungen in Allplan.
Attribute einmal definieren und automatisch auf alle Schichten und bestehende Geometrien anwenden.
Einstellungen direkt in der Palette speichern, laden und übernehmen – konsistent zum bewährten Rechtsklick-Workflow.
Patch-Makros lassen sich nach dem Auflösen der Gruppe direkt weiter mit dem Plugin bearbeiten.
User-Lizenz:
Die User-Lizenzen werden jeweils an die E-Mail Adresse gebunden und funktionieren mit der neuen 10Duke Lizenzierung von ALLPLAN zusammen.
Auch mehrere E-Mail Adressen sind bei diesem Lizenztyp möglich. Die Lizenzen können jeweils im eigenen Büro an andere E-Mail Adressen freigegeben werden.
Bürolizenzen:
Die Bürolizenz wird jeweils an die ALLPLAN Kundennummer gekoppelt und funktioniert mit allen ALLPLAN Lizenzen im Büro.
Dieser Lizenztyp ist auch unsere Empfehlung.
Der Preis richtet sich jeweils an der max. Anzahl ALLPLAN Lizenzen im Büro aus.
Testversion:
Sie können das Add-On 14 Tage kostenlos im Büro testen.
Studentenversion:
Die kostenlosen Add-On Lizenzen sind nur im Zusammenhang mit einer ALLPLAN Studentenversion (campus.allplan.com) verfügbar.
Preise:
12 Monate SUB User-Lizenz: Lizenzpreis pro E-Mail Adresse : CHF 480/Jahr (CH) / Euro 480/Jahr (EU)
12 Monate SUB Bürolizenz bis 10 ALLPLAN Lizenzen: Bürolizenzpreis für alle Arbeitsplätze: CHF 2'400/Jahr (CH) / Euro 2'400/Jahr (EU)
12 Monate SUB Bürolizenz mehr als 10 ALLPLAN Lizenzen: Bürolizenzpreis für alle Arbeitsplätze: CHF 4'800/Jahr (CH) / Euro 4'800/Jahr (EU)
12 Monate SUB Bürolizenz mehr als 50 ALLPLAN Lizenzen: Preis auf Anfrage
Vertragsbedingungen: Automatische Verlängerung um 12 Monate
Kündigungsfrist: 3 Monate zu Ende der Vertragslaufzeit
Alle Preise exkl. MwSt.
Systemvoraussetzungen:
ALLPLAN 2024 - 2026
Verfügbare Sprachen:
Deutsch, Englisch, Italienisch und Französisch
FAQ: Häufig gestellte Fragen in Verbindung mit dem neuen Lizenz System 10Duke von Allplan. Hier geht es zum FAQ
Hotline: Support Anfragen zu den Add-On's sind im Keymember Abo enthalten.
Link zu YouTube: Installationsanleitung mit dem Multi Setup inkl. Lizenz Verwaltung
PDF Anleitung: Add-On Installation und Lizenzierung.pdf
Link zum Download Bereich (Setup)
Link zu weiteren ALLPLAN Add-Ons
Das Add-On PatchWork können Sie 14 Tage kostenlos testen
Den Downloadbereich für sämtliche Add-On's der CDS Bausoftware AG finden Sie hier:
Die Allplan Daten zu den Filmen finden Sie auf unserem Online Portal.
| www.cds-bausoftware.ch | Softwarelösungen und Ausbildung: BIM, CAD, Addon, Keymember, Visual, Statik, Seminare |
| www.cds-bauingenieure.ch | Ingenieur-Dienstleistungen: Statik, Schalung, Bewehrung, Strassenbau, Leitungsbau |
| www.cds-netcom.ch | IT-Partner: Server-Client-Netzwerke, Cloud-Lösungen, Managed Services, IT-Sicherheit, IT-Analysen |
| www.cds-ausbildung.ch | Ausbildung: Seminare, Workshops, Webinare, Online Weiterbildung, Projektbegleitung, Kompetenzanalyse |
| www.cds-baugrube.ch | ALLPLAN Add-On Baugrube: Baugruben, Aushub, Gelände |
| www.cds-stahlbau.ch | ALLPLAN Add-On Profilbauteile: Stahlbau, Verbindungen, Profilbleche, Sandwichelemente |
| www.cds-schleppkurve.ch | ALLPLAN Add-ON Fahrspur: Fahrzeughüllkurven, Schleppkurven, Wendemanöver |
| www.cds-bim.ch | BIM: Kompetenz, Ausbildung, Workshops, Zertifizierung, Kollaboration, Projektbegleitung |